Hier finden Sie alles, was sie benötigen, um sich vom Alltagsstress zu erholen.

Impressum

GrassDas Haus

Zum Vergrößern der Bilder können Sie diese anklicken.

Ansichten rund ums Haus

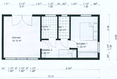
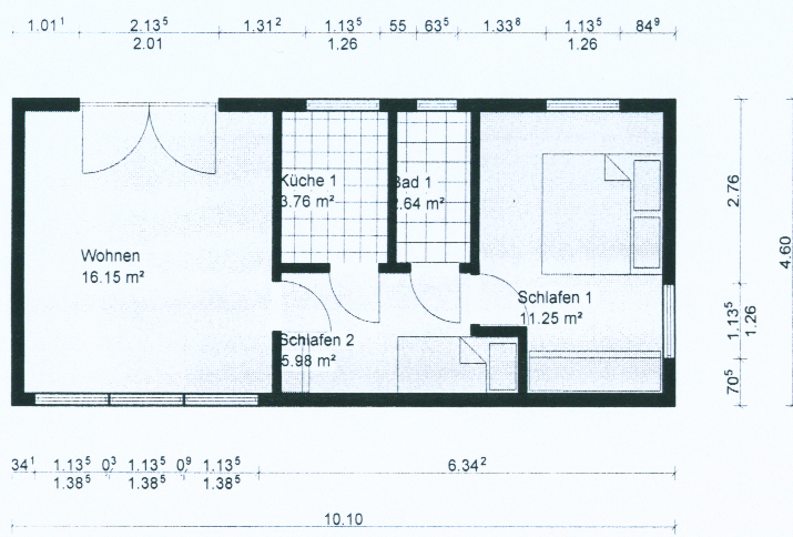
Grundriß des Hauses